Dane techniczne
| Nazwa projektu | G361 – Budynek garażowo – gospodarczy |
| Cena projektu | |
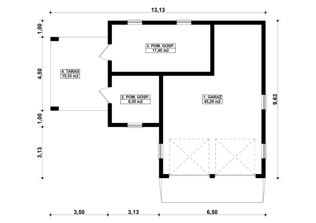
| Powierzchnia użytkowa | 71,04 m2 |
| Powierzchnia zabudowy | 98,69 m2 |
| Kubatura | 363,10 m3 |
| Kąt nachylenia dachu | 30 ° |
Opis
G361 – Budynek garażowo – gospodarczy
PROJEKT:
Projekt garażu dwustanowiskowego, parterowego, niepodpiwniczonego, przeznaczonego dla samochodów osobowych z dwoma pomieszczeniami gospodarczymi i tarasem. Do projektu dołączone jest zestawienie: stali, więźby dachowej oraz stolarki drzwiowej i okiennej, jak również bezpłatna zgoda na dokonanie zmian.
TECHNOLOGIA:
Budynek wykonany w technologii tradycyjnej. Ściany murowane z bloczków z betonu komórkowego grubości 24cm. Brama o wymiarach 2,50×2,20m. Słupy żelbetowe. Komin z cegły ceramicznej pełnej. Więźba dachowa wielospadowa, drewniana, pokryta blachą trapezową.
—————————————————————————————————————————–




