Dane techniczne
| Nazwa projektu | G31 – Budynek garażowy z wiatą |
| Cena projektu | |
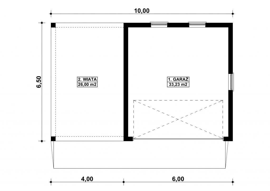
| Powierzchnia użytkowa | 33,23 m2 |
| Powierzchnia zabudowy | 65,00 m2 |
| Kubatura | 136,00 m2 |
| Kąt nachylenia dachu | 25 ° |
Opis
G31 – Budynek garażowy z wiatą
PROJEKT:
Projekt garażu dwustanowiskowego, parterowego, niepodpiwniczonego, przeznaczonego dla samochodów osobowych, z wiatą. Do projektu dołączone jest zestawienie: stali, więźby dachowej oraz stolarki drzwiowej i okiennej, jak również bezpłatna zgoda na dokonanie zmian.
TECHNOLOGIA:
Budynek wykonany w technologii tradycyjnej. Ściany murowane z bloczków z betonu komórkowego grubości 24cm. Brama o wymiarach 5,00×2,10m. Słupy z cegły ceramicznej pełnej. Podciągi żelbetowe. Więźba dachowa dwuspadowa, drewniana, pokryta blachodachówką.
—————————————————————————————————————————–








