Dane techniczne
| Nazwa projektu | G221 – Budynek gospodarczy |
| Cena projektu | |
| Powierzchnia użytkowa | 242,36 m2 |
| Powierzchnia zabudowy | 262,20 m2 |
| Kubatura | 1206,20 m3 |
| Kąt nachylenia dachu | 25 ° |
Opis
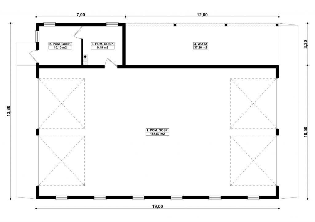
G221 – Budynek gospodarczy
PROJEKT:
Projekt budynku parterowego, niepodpiwniczonego z trzema pomieszczeniami gospodarczymi i wiatą. Do projektu dołączone jest zestawienie: stali, więźby dachowej oraz stolarki drzwiowej i okiennej, jak również bezpłatna zgoda na dokonanie zmian.
TECHNOLOGIA:
Budynek wykonany w technologii tradycyjnej. Ściany murowane z bloczków z betonu komórkowego grubości 24cm. Bramy o wymiarach 4,00×3,60m. Komin z cegły ceramicznej pełnej. Więźba dachowa dwuspadowa, drewniana, pokryta blachą trapezową.
Budynek z możliwością powiększania modułowego: moduł – 3,00m.
—————————————————————————————————————————–








