Informacje dodatkowe
| Dach | dwuspadowy |
|---|---|
| Funkcje | garażowe, gospodarcze |
| Liczba stanowisk garażowych | 2 |
| Technologia | murowane |
| Powierzchnia użytkowa 2 |
Cena:
1,390zł
Powierzchnia użytkowa:
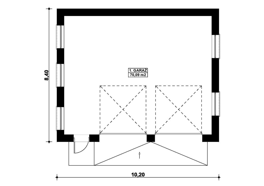
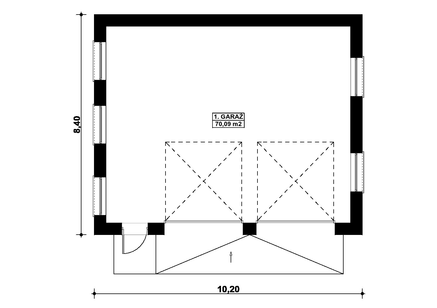
70,09 m2
Zamów projekt
| Dach | dwuspadowy |
|---|---|
| Funkcje | garażowe, gospodarcze |
| Liczba stanowisk garażowych | 2 |
| Technologia | murowane |
| Powierzchnia użytkowa 2 |
| Nazwa projektu | G424 – Budynek gospodarczy |
| Cena projektu | |
| Powierzchnia użytkowa | 70,09m2 |
| Powierzchnia zabudowy | 85,68m2 |
| Kubatura | 442,00m3 |
| Kąt nachylenia dachu | 25 ° |
Wraz z wysłanym projektem otrzymacie Państwo od nas bezpłatną zgodę na dokonanie
zmian przez uprawnioną osobę dokonującą adaptacji do warunków miejscowych.
Projekt zostanie dostarczamy w terminie 2-5 dni roboczych od otrzymania Zamówienia.
Projekt wraz z fakturą otrzymają Państwo przesyłką pobraniową (realizacja płatności za projekt).
Wszystkie projekty wysyłane są na nasz koszt.
Gwarancja bezpiecznych zakupów
Profesjonalne doradztwo