Dane techniczne
| Nazwa projektu | G307 – Budynek garażowy |
| Cena projektu | |
| Powierzchnia użytkowa | 28,23 m2 |
| Powierzchnia zabudowy | 34,00 m2 |
| Kubatura | 107,20 m3 |
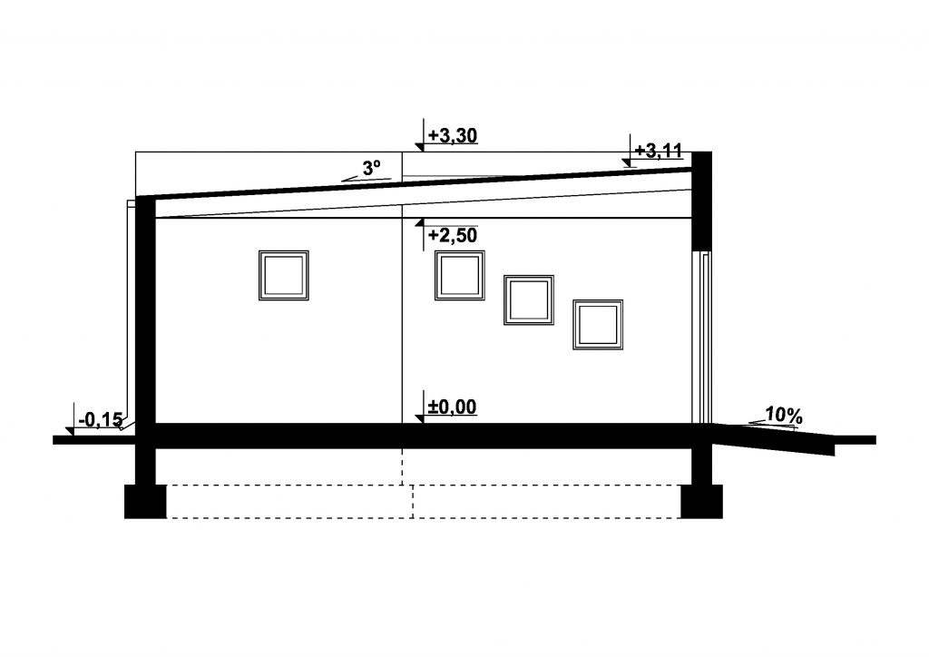
| Kąt nachylenia dachu | 3 ° |
Opis
G307 – Budynek garażowy
PROJEKT:
Projekt garażu jednostanowiskowego, parterowego, niepodpiwniczonego, przeznaczonego dla samochodów osobowych. Do projektu dołączone jest zestawienie: stali, więźby dachowej oraz stolarki drzwiowej i okiennej, jak również bezpłatna zgoda na dokonanie zmian.
TECHNOLOGIA:
Budynek wykonany w technologii tradycyjnej. Ściany murowane z bloczków z betonu komórkowego grubości 24cm. Brama o wymiarach 2,50×2,20m. Więźba dachowa jednospadowa, drewniana, pokryta blachą na rąbek.
—————————————————————————————————————————–




