Dane techniczne
| Nazwa projektu | G188 – Budynek garażowo – gospodraczy |
| Cena projektu | |
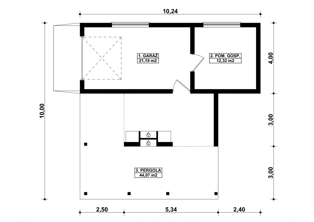
| Powierzchnia użytkowa | 33,51 m2 |
| Powierzchnia zabudowy | 56,98 m2 |
| Kubatura | 181,80 m3 |
| Kąt nachylenia dachu | 25 ° |
Opis
G188 – Budynek garażowo – gospodarczy
PROJEKT:
Projekt garażu jednostanowiskowego, parterowego, niepodpiwniczonego, przeznaczonego dla samochodów osobowych z pomieszczeniem gospodarczym i grillem. Do projektu dołączone jest zestawienie: stali, więźby dachowej oraz stolarki drzwiowej i okiennej, jak również bezpłatna zgoda na dokonanie zmian.
TECHNOLOGIA:
Budynek wykonany w technologii tradycyjnej. Ściany murowane z bloczków z betonu komórkowego grubości 24cm. Brama o wymiarach 2,50×2,20m. Grill z cegły ceramicznej pełnej. Więźba dachowa dwuspadowa, drewniana, pokryta blachodachówką.
—————————————————————————————————————————–








