Dane techniczne
| Nazwa projektu | G277 – Budynek garażowo – gospodarczy |
| Cena projektu | |
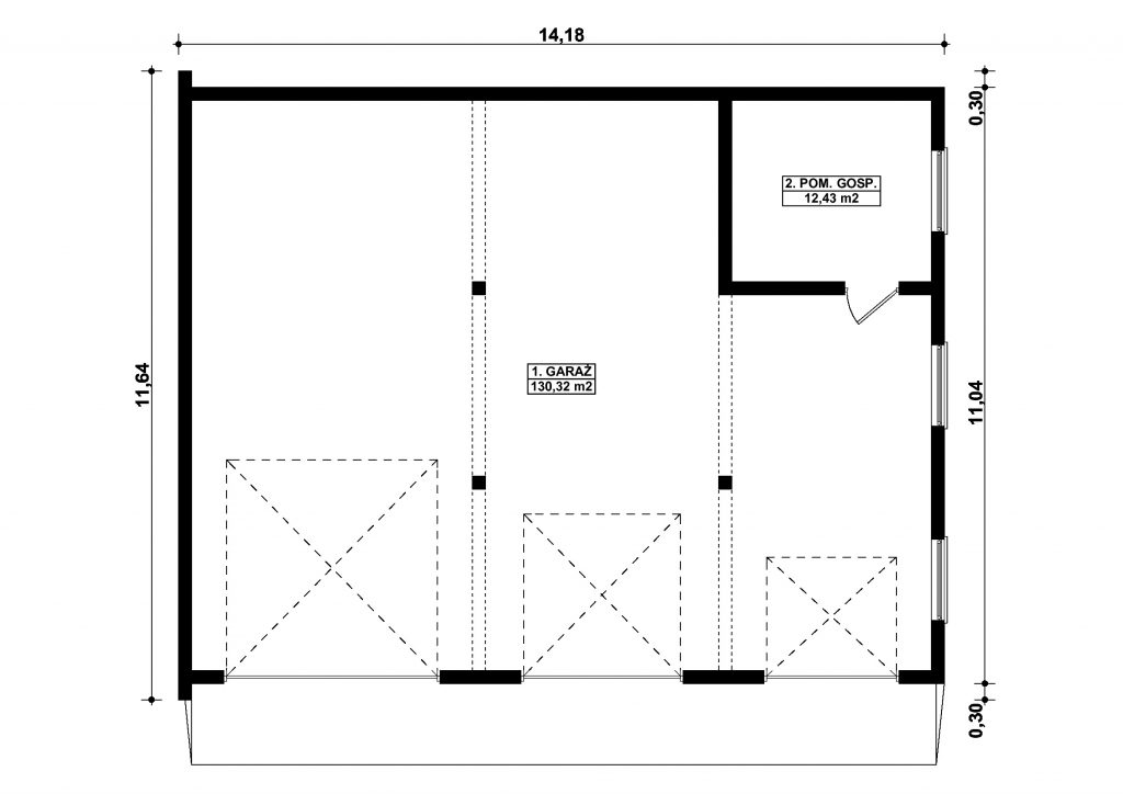
| Powierzchnia użytkowa | 142,75 m2 |
| Powierzchnia zabudowy | 156,69 m2 |
| Kubatura | 673,50 m3 |
| Kąt nachylenia dachu | 10 ° |
Opis
G277 – Budynek garażowo – gospodarczy
PROJEKT:
Projekt garażu trzystanowiskowego, parterowego, przeznaczonego dla samochodów ciężarowych, dostawczych i osobowych z pomieszczeniem gospodarczym. Do projektu dołączone jest zestawienie: stali, więźby dachowej oraz stolarki drzwiowej i okiennej, jak również bezpłatna zgoda na dokonanie zmian.
TECHNOLOGIA:
Budynek wykonany w technologii tradycyjnej. Ściany murowane z bloczków z betonu komórkowego grubości 24cm. Bramy o wymiarach 4,00×4,00m, 3,00×3,00 i 2,50×2,20m. Słupy i podciągi żelbetowe. Więźba dachowa jednospadowa, drewniana, pokryta blachą trapezową.
—————————————————————————————————————————–








