Dane techniczne
| Nazwa projektu | G237 – Budynek gospodarczy |
| Cena projektu | |
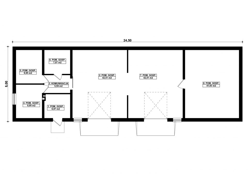
| Powierzchnia użytkowa | 165,32 m2 |
| Powierzchnia zabudowy | 190,00 m2 |
| Kubatura | 859,95 m3 |
| Kąt nachylenia dachu | 25 ° |
Opis
G237 – Budynek gospodarczy
PROJEKT:
Projekt budynku parterowego, niepodpiwniczonego z siedmioma pomieszczeniami gospodarczymi. Do projektu dołączone jest zestawienie: stali, więźby dachowej oraz stolarki drzwiowej i okiennej, jak również bezpłatna zgoda na dokonanie zmian.
TECHNOLOGIA:
Budynek wykonany w technologii tradycyjnej. Ściany warstwowe grubości 36cm, murowane z bloczków z betonu komórkowego grubości 24cm, ocieplone styropianem grubości 12cm. Ściany wewnętrzne z bloczków z betonu komórkowego grubości 24cm i 12cm. Bramy o wymiarach 2,50×2,82m. Komin z cegły ceramicznej pełnej. Strop żelbetowy ocieplony wełną mineralną. Więźba dachowa dwuspadowa, drewniana, pokryta blachodachówką.
—————————————————————————————————————————–








