Dane techniczne
| Nazwa projektu | G95 – Budynek garażowo – gospodarczy |
| Cena projektu | |
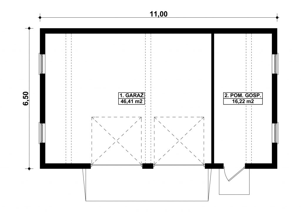
| Powierzchnia użytkowa | 62,63 m2 |
| Powierzchnia zabudowy | 71,50 m2 |
| Kubatura | 306,90 m2 |
| Kąt nachylenia dachu | 35/45 ° |
Opis
G95 – Budynek garażowo – gospodarczy
PROJEKT:
Projekt garażu dwustanowiskowego, parterowego, niepodpiwniczonego, przeznaczonego dla samochodów osobowych z pomieszczeniem gospodarczym. Do projektu dołączone jest zestawienie: stali, więźby dachowej oraz stolarki drzwiowej i okiennej, jak również bezpłatna zgoda na dokonanie zmian.
TECHNOLOGIA:
Budynek wykonany w technologii tradycyjnej. Ściany murowane z bloczków z betonu komórkowego grubości 24cm i 12cm. Bramy o wymiarach 2,40×2,20m. Podciągi żelbetowe. Więźba dachowa mansardowa, drewniana, pokryta blachodachówką.
—————————————————————————————————————————–








