Dane techniczne
| Nazwa projektu | G386 – Budynek garażowo – gospodarczy |
| Cena projektu | |
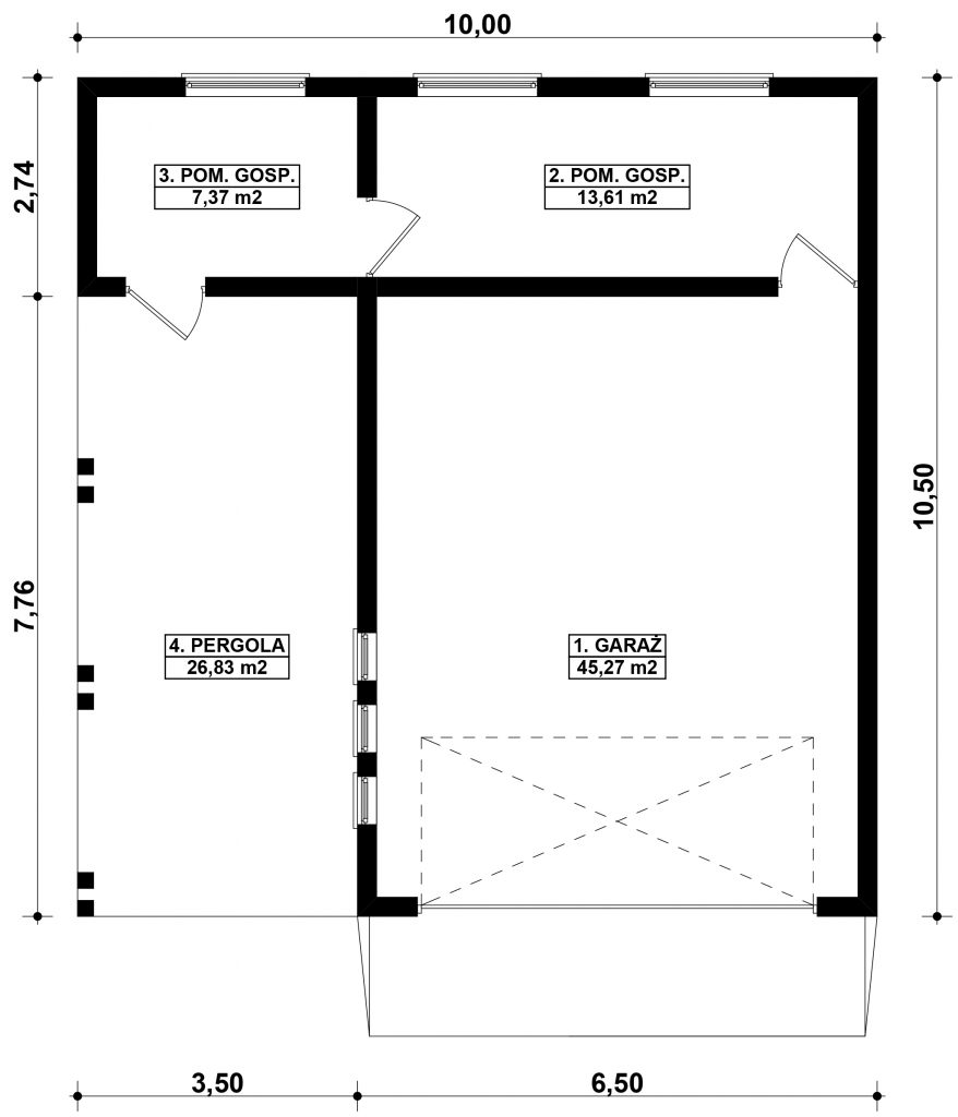
| Powierzchnia użytkowa | 66,25 m2 |
| Powierzchnia zabudowy | 105,00 m2 |
| Kubatura | 333,60 m2 |
| Kąt nachylenia dachu | 3 ° |
Opis
G386 – Budynek garażowo-gospodarczy
PROJEKT:
Projekt budynku garażowo-gospodarczego, parterowego, niepodpiwniczonego z dwoma pomieszczeniami gospodarczymi oraz garażem jednostanowiskowym. Do projektu dołączone jest zestawienie: stali, więźby dachowej oraz stolarki drzwiowej i okiennej, jak również bezpłatna zgoda na dokonanie zmian.
TECHNOLOGIA:
Budynek wykonany w technologii tradycyjnej. Ściany murowane z bloczków z betonu komórkowego grubości 24cm. Brama o wymiarze 5,00×2,20m. Więźba dachowa (3°), drewniana, pokryta papą.
—————————————————————————————————————————–








