Informacje dodatkowe
| Dach | dwuspadowy |
|---|---|
| Funkcje | garażowe |
| Liczba stanowisk garażowych | 2 |
| Technologia | murowane |
| Powierzchnia użytkowa | |
| Powierzchnia użytkowa 2 |
Cena:
1,490zł
Powierzchnia użytkowa:
92,79 m2
Zamów projekt
| Dach | dwuspadowy |
|---|---|
| Funkcje | garażowe |
| Liczba stanowisk garażowych | 2 |
| Technologia | murowane |
| Powierzchnia użytkowa | |
| Powierzchnia użytkowa 2 |
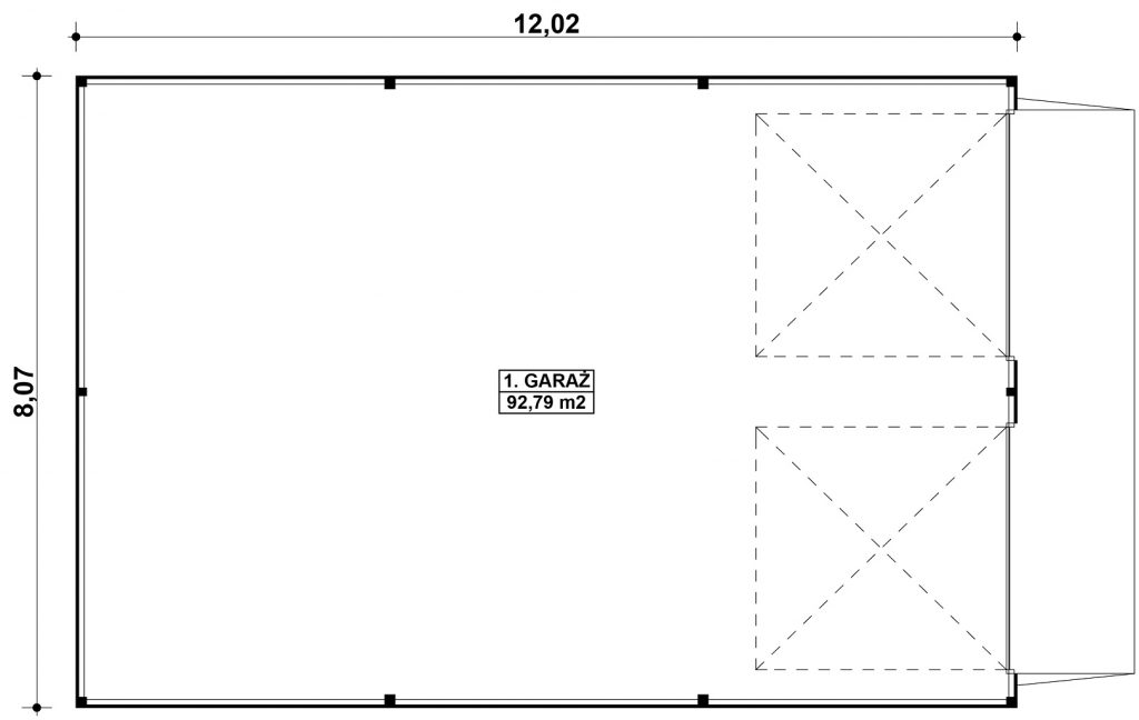
| Nazwa projektu | G362 – Budynek garażowy |
| Cena projektu | |
| Powierzchnia użytkowa | 92,79 m2 |
| Powierzchnia zabudowy | 97,00 m2 |
| Kubatura | 432,80 m3 |
| Kąt nachylenia dachu | 11 ° |
<h3>Rzut parteru</h3>
[pdf-embedder url="https://www.kupprojekt.pl/wp-content/uploads/2026/01/G1-N-A-1-210x297-1.pdf"]
Wraz z wysłanym projektem otrzymacie Państwo od nas bezpłatną zgodę na dokonanie
zmian przez uprawnioną osobę dokonującą adaptacji do warunków miejscowych.
Projekt zostanie dostarczamy w terminie 2-5 dni roboczych od otrzymania Zamówienia.
Projekt wraz z fakturą otrzymają Państwo przesyłką pobraniową (realizacja płatności za projekt).
Wszystkie projekty wysyłane są na nasz koszt.
Gwarancja bezpiecznych zakupów
Profesjonalne doradztwo