Dane techniczne
| Nazwa projektu | G321 – Budynek gospodarczy |
| Cena projektu | |
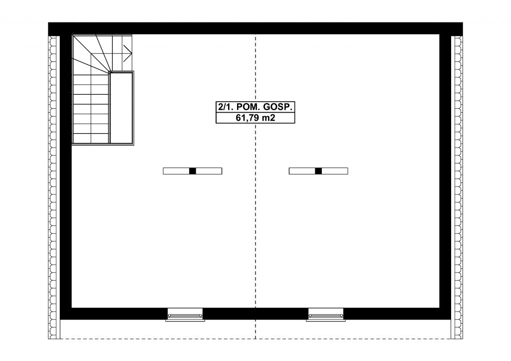
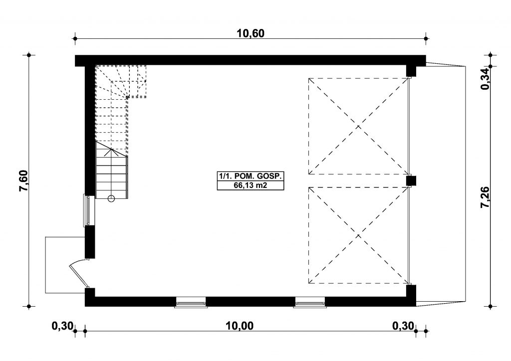
| Powierzchnia użytkowa | 127,92 m2 |
| Powierzchnia zabudowy | 78,41 m2 |
| Kubatura | 483,40 m3 |
| Kąt nachylenia dachu | 30 ° |
Opis
G321 – Budynek garażowo – gospodarczy
PROJEKT:
Projekt garażu trzystanowiskowego parterowego z poddaszem, niepodpiwniczonego, przeznaczonego dla samochodów dostawczych. Do projektu dołączone jest zestawienie: stali, więźby dachowej oraz stolarki drzwiowej i okiennej, jak również bezpłatna zgoda na dokonanie zmian.
TECHNOLOGIA:
Budynek wykonany w technologii tradycyjnej. Ściany warstwowe grubości 29cm, murowane z bloczków z betonu komórkowego grubości 24cm, ocieplone styropianem grubości 5cm. Bramy o wymiarach 3,00×3,00m. Strop gęstożebrowy „TERIVA . Więźba dachowa dwuspadowa, drewniana, pokryta blachą na rąbek.
—————————————————————————————————————————–








