Dane techniczne
| Nazwa projektu | G309 – Budynek garażowo – gospodarczy |
| Cena projektu | |
| Powierzchnia użytkowa | 60,29 m2 |
| Powierzchnia zabudowy | 37,10 m2 |
| Kubatura | 40 m3 |
| Kąt nachylenia dachu | 189,60 ° |
Opis
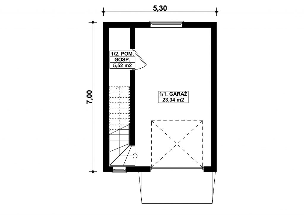
G309 – Budynek garażowo – gospodarczy
PROJEKT:
Projekt garażu jednostanowiskowego, piętrowego, przeznaczonego dla samochodów osobowych z dwoma pomieszczeniami gospodarczymi. Do projektu dołączone jest zestawienie: stali, więźby dachowej oraz stolarki drzwiowej i okiennej, jak również bezpłatna zgoda na dokonanie zmian.
TECHNOLOGIA:
Budynek wykonany w technologii tradycyjnej. Ściany murowane z bloczków z betonu komórkowego grubości 24cm. Brama o wymiarach 2,50×2,20m. Strop gęstożebrowy „TERIVA . Więźba dachowa dwuspadowa, drewniana, pokryta blachą na rąbek.
—————————————————————————————————————————–








