Dane techniczne
| Nazwa projektu | G272 – Budynek garażowo – gospodarczy |
| Cena projektu | |
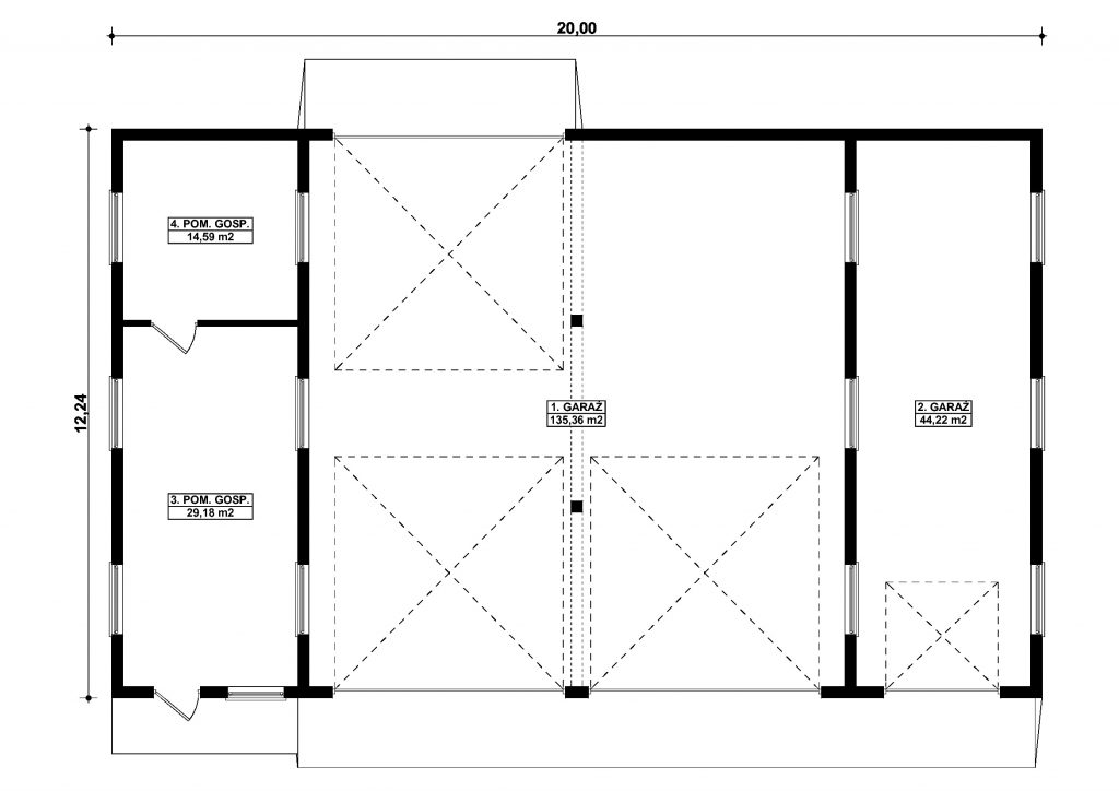
| Powierzchnia użytkowa | 223,35 m2 |
| Powierzchnia zabudowy | 244,80 m2 |
| Kubatura | 1258,60 m2 |
| Kąt nachylenia dachu | 10 ° |
Opis
G272 – Budynek garażowo – gospodarczy
PROJEKT:
Projekt garażu trzystanowiskowego, parterowego, przeznaczonego dla samochodów ciężarowych i osobowych z dwoma pomieszczeniami gospodarczymi. Do projektu dołączone jest zestawienie: stali, więźby dachowej oraz stolarki drzwiowej i okiennej, jak również bezpłatna zgoda na dokonanie zmian.
TECHNOLOGIA:
Budynek wykonany w technologii tradycyjnej. Ściany murowane z bloczków z betonu komórkowego grubości 24cm i 12cm. Bramy o wymiarach 5,00×5,00m i 2,50×2,30m. Słupy i podciągi żelbetowe. Więźba dachowa dwuspadowa, drewniana, pokryta blachą na rąbek.
—————————————————————————————————————————–








