Dane techniczne
| Nazwa projektu | G271 – Budynek garażowo – gospodarczy |
| Cena projektu | |
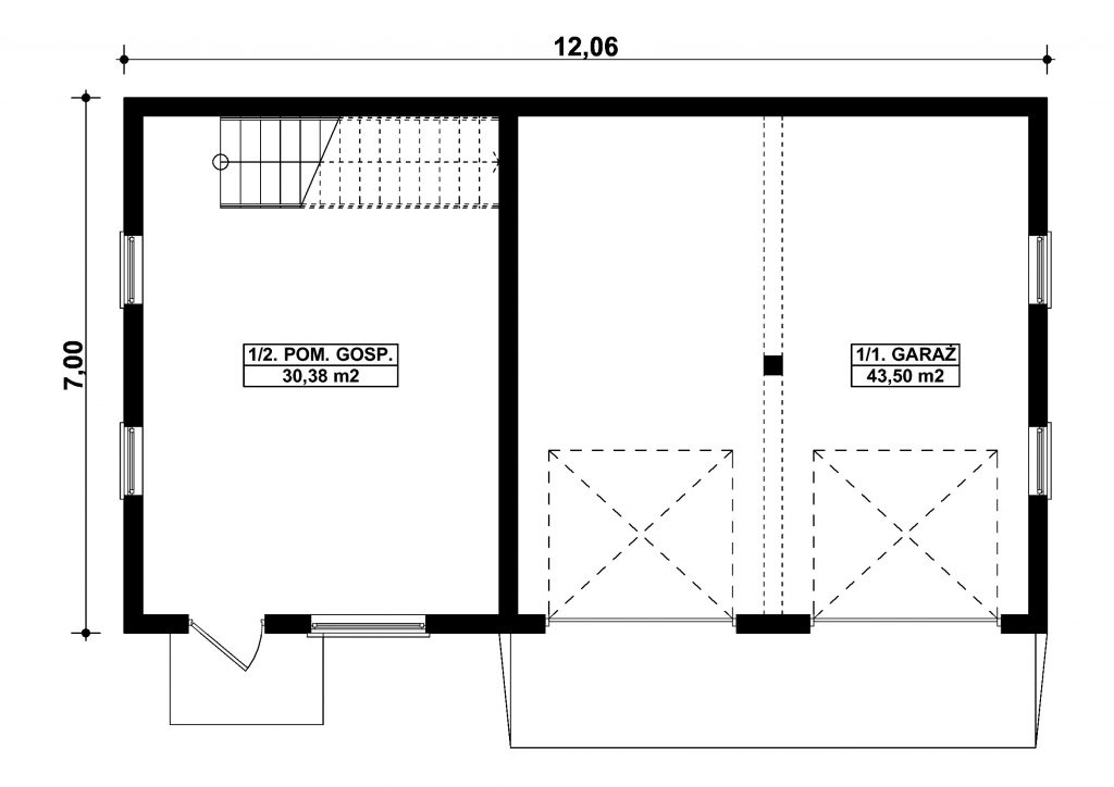
| Powierzchnia użytkowa | 143,79 m2 |
| Powierzchnia zabudowy | 84,42 m2 |
| Kubatura | 533,00 m3 |
| Kąt nachylenia dachu | 7 ° |
Opis
G271 – Budynek garażowo – gospodarczy
PROJEKT:
Projekt garażu dwustanowiskowego, piętrowego, przeznaczonego dla samochodów osobowych z dwoma pomieszczeniami gospodarczymi. Do projektu dołączone jest zestawienie: stali, więźby dachowej oraz stolarki drzwiowej i okiennej, jak również bezpłatna zgoda na dokonanie zmian.
TECHNOLOGIA:
Budynek wykonany w technologii tradycyjnej. Ściany murowane z bloczków z betonu komórkowego grubości 24cm i 12cm. Bramy o wymiarach 2,50×2,20m. Strop gęstożebrowy „TERIVA . Więźba dachowa jednospadowa, stalowa, pokryta płytą warstwową.
—————————————————————————————————————————–








