Dane techniczne
| Nazwa projektu | G200 – Budynek mieszkalno – garażowy |
| Cena projektu | |
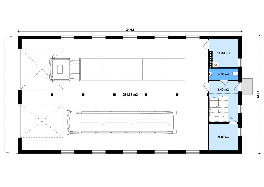
| Powierzchnia użytkowa | 525,92 m2 |
| Powierzchnia netto | 601,01 m2 |
| Powierzchnia zabudowy | 319,07 m3 |
| Kubatura | 2882,20 m2 |
| Kąt nachylenia dachu | 31 ° |
| Minimalne wymiary działki | 32,62/20,96 m2 |
Opis
G200 – Budynek mieszkalno – garażowy
PROJEKT:
Projekt budynku mieszkalnego, parterowego, niepodpiwniczonego z poddaszem mieszkalnym, kuchnią, jadalnią, salonem, czterema pokojami, trzema łazienkami, garażem dwustanowiskowym, przeznaczonym dla samochodów ciężarowych, i antresolą. Do projektu dołączone jest zestawienie: stali, więźby dachowej oraz stolarki drzwiowej, jak również bezpłatna zgoda na dokonanie zmian.
TECHNOLOGIA:
Budynek wykonany w technologii tradycyjnej. Ściany warstwowe grubości 36cm, murowane z bloczków z betonu komórkowego grubości 24cm, ocieplone styropianem grubości 12cm. Ściany wewnętrzne z bloczków z betonu komórkowego grubości 24cm i 12cm. Komin z cegły ceramicznej pełnej. Słupy i podciągi żelbetowe. Strop gęstożebrowy „TERIVA . Więźba dachowa dwuspadowa, drewniana, pokryta blachodachówką.
—————————————————————————————————————————–








