Dane techniczne
| Nazwa projektu | G187 – Budynek garażowy |
| Cena projektu | |
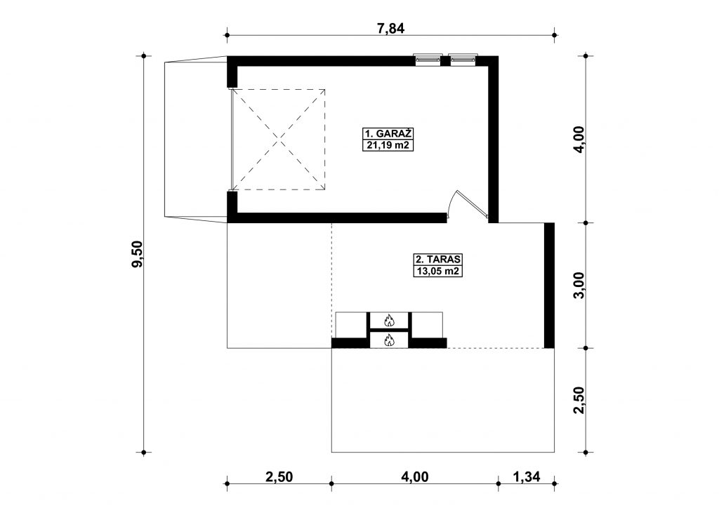
| Powierzchnia użytkowa | 21,19 m2 |
| Powierzchnia zabudowy | 42,02 m2 |
| Kubatura | 131,60 m3 |
| Kąt nachylenia dachu | 25 ° |
Opis
G187 – Budynek garażowy
PROJEKT:
Projekt garażu jednostanowiskowego, parterowego, niepodpiwniczonego, przeznaczonego dla samochodów osobowych z grillem. Do projektu dołączone jest zestawienie: stali, więźby dachowej oraz stolarki drzwiowej i okiennej, jak również bezpłatna zgoda na dokonanie zmian.
TECHNOLOGIA:
Budynek wykonany w technologii tradycyjnej. Ściany murowane z bloczków z betonu komórkowego grubości 24cm. Brama o wymiarach 2,50×2,20m. Grill z cegły ceramicznej pełnej. Więźba dachowa dwuspadowa, drewniana, pokryta blachodachówką.
—————————————————————————————————————————–








