Dane techniczne
| Nazwa projektu | G155 – Budynek garażowy |
| Cena projektu | |
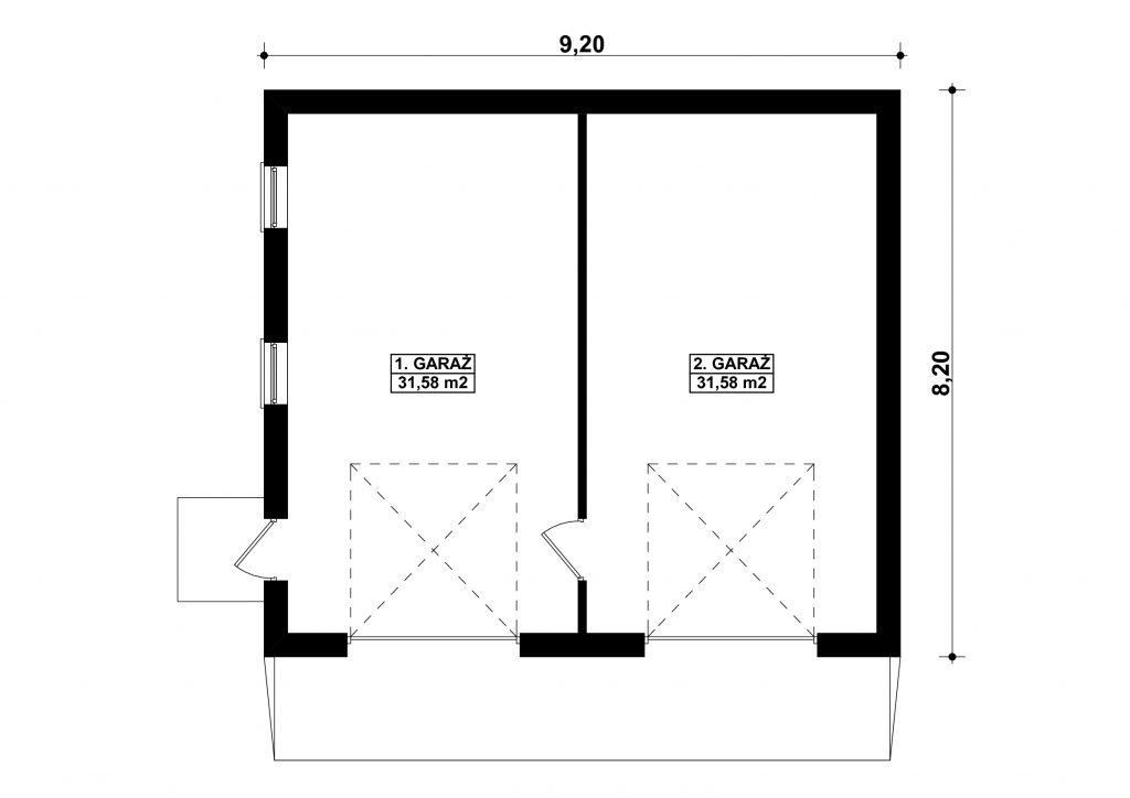
| Powierzchnia użytkowa | 63,16 m2 |
| Powierzchnia zabudowy | 75,44 m2 |
| Kubatura | 291,70 m2 |
| Kąt nachylenia dachu | 20 ° |
Opis
G155 – Budynek garażowy
PROJEKT:
Projekt garażu dwustanowiskowego, parterowego, niepodpiwniczonego, przeznaczonego dla samochodów osobowych. Do projektu dołączone jest zestawienie: stali, więźby dachowej oraz stolarki drzwiowej i okiennej, jak również bezpłatna zgoda na dokonanie zmian.
TECHNOLOGIA:
Budynek wykonany w technologii tradycyjnej. Ściany warstwowe grubości 34cm, murowane z bloczków z betonu komórkowego grubości 24cm, ocieplone styropianem grubości 10cm. Ściany wewnętrzne z bloczków z betonu komórkowego grubości 12cm. Bramy o wymiarach 2,50×2,50m. Więźba dachowa dwuspadowa, stalowa, pokryta blachodachówką.
—————————————————————————————————————————–








