Dane techniczne
| Nazwa projektu | G126 – Budynek garażowy |
| Cena projektu | |
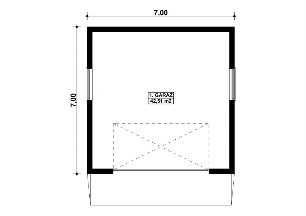
| Powierzchnia użytkowa | 42,51 m2 |
| Powierzchnia zabudowy | 49,00 m2 |
| Kubatura | 161,40 m2 |
| Kąt nachylenia dachu | 5 ° |
Opis
G126 – Budynek garażowy
PROJEKT:
Projekt garażu dwustanowiskowego, parterowego, niepodpiwniczonego, przeznaczonego dla samochodów osobowych. Do projektu dołączone jest zestawienie: stali, więźby dachowej oraz stolarki drzwiowej, jak również bezpłatna zgoda na dokonanie zmian.
TECHNOLOGIA:
Budynek wykonany w technologii tradycyjnej. Ściany murowane z bloczków z betonu komórkowego grubości 24cm. Brama o wymiarach 4,60×2,15m. Więźba dachowa jednospadowa, drewniana, pokryta blachą trapezową.
—————————————————————————————————————————–








