Dane techniczne
| Nazwa projektu | G104 – Budynek garażowo – gospodarczy |
| Cena projektu | |
| Powierzchnia użytkowa | 73,07 m2 |
| Powierzchnia zabudowy | 87,60 m2 |
| Kubatura | 415,00 m2 |
| Kąt nachylenia dachu | 10 ° |
Opis
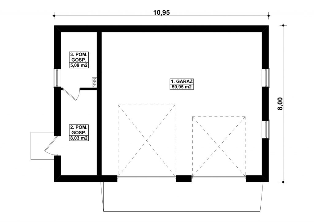
G104 – Budynek garażowo – gospodarczy
PROJEKT:
Projekt garażu dwustanowiskowego, parterowego, niepodpiwniczonego, przeznaczonego dla samochodów dostawczych i osobowych z dwoma pomieszczeniami gospodarczymi. Do projektu dołączone jest zestawienie: stali, więźby dachowej oraz stolarki drzwiowej i okiennej, jak również bezpłatna zgoda na dokonanie zmian.
TECHNOLOGIA:
Budynek wykonany w technologii tradycyjnej. Ściany warstwowe grubości 34cm, murowane z bloczków z betonu komórkowego grubości 24cm, ocieplone styropianem grubości 10cm. Bramy o wymiarach 2,70×3,05m i 3,00×3,65m. Komin z cegły ceramicznej pełnej. Więźba dachowa jednospadowa, stalowa, pokryta blachą trapezową.
—————————————————————————————————————————–G105 – Budynek gospodarczy
PROJEKT:
Projekt budynku gospodarczego, parterowego, niepodpiwniczonego z wiatą. Do projektu dołączone jest zestawienie: stali, więźby dachowej oraz stolarki drzwiowej i okiennej, jak również bezpłatna zgoda na dokonanie zmian.
TECHNOLOGIA:
Budynek wykonany w technologii tradycyjnej. Ściany murowane z bloczków z betonu komórkowego grubości 24cm. Więźba dachowa dwuspadowa, drewniana, pokryta blachodachówką.
—————————————————————————————————————————–








